Elected Officials
Courts
Departments
Initiatives
Open Government
About
Login / Register
Home
/
Property & Tax Records
/
Property Records
/
Property & Tax Search
/
Parcel Profile
/
Sketches
Search for Another Parcel
Parcel Profile
Historical Card
Sketches
Photos
Tax Map
Taxes
Print View
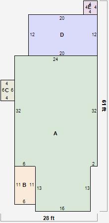
Address: 2657 CHESTNUT ST
Parcel: 19060050023700
Parcel Sketches
Residential Card 1
A
MAIN
976 square feet
B
OFP OPEN FRAME PORCH
66 square feet
C
OFP OPEN FRAME PORCH
24 square feet
D
1S FR ONE STORY FRAME
240 square feet
E
OFP OPEN FRAME PORCH
16 square feet