Elected Officials
Courts
Departments
Initiatives
Open Government
About
Login / Register
Home
/
Property & Tax Records
/
Property Records
/
Property & Tax Search
/
Parcel Profile
/
Sketches
Search for Another Parcel
Parcel Profile
Historical Card
Sketches
Photos
Tax Map
Taxes
Print View
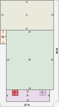
Address: 227 SCOTT ST
Parcel: 19060053020300
Parcel Sketches
Residential Card 1
A
MAIN
720 square feet
B
OFP OPEN FRAME PORCH
21 square feet
C
1S FR ONE STORY FRAME AT FN ATTIC-FINISHED
405 square feet
D
FROVR FRAME OVERHANG
9 square feet
E
MA_PT CONC/MAS PATIO
132 square feet
F
FROVR FRAME OVERHANG
9 square feet