Elected Officials
Courts
Departments
Initiatives
Open Government
About
Login / Register
Home
/
Property & Tax Records
/
Property Records
/
Property & Tax Search
/
Parcel Profile
/
Sketches
Search for Another Parcel
Parcel Profile
Historical Card
Sketches
Photos
Tax Map
Taxes
Print View
Address: 325 W 31 ST
Parcel: 19061001011700
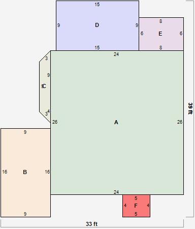
Parcel Sketches
Residential Card 1
A
MAIN
624 square feet
B
OFP OPEN FRAME PORCH
144 square feet
C
FROVR FRAME OVERHANG
22 square feet
D
1S FR ONE STORY FRAME
135 square feet
E
1S FR ONE STORY FRAME
48 square feet
F
OFP OPEN FRAME PORCH
20 square feet