Elected Officials
Courts
Departments
Initiatives
Open Government
About
Login / Register
Home
/
Property & Tax Records
/
Property Records
/
Property & Tax Search
/
Parcel Profile
/
Sketches
Search for Another Parcel
Parcel Profile
Historical Card
Sketches
Photos
Tax Map
Taxes
Print View
Address: 3528 32 MAPLE ST
Parcel: 19061006020200
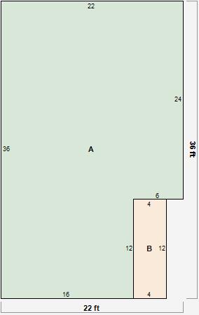
Parcel Sketches
Residential Card 1
A
MAIN
1012 square feet
B
EFP ENCL FRAME PORCH
70 square feet
C
OFP OPEN FRAME PORCH
30 square feet
Residential Card 2
A
MAIN
720 square feet
B
OFP OPEN FRAME PORCH
48 square feet