Elected Officials
Courts
Departments
Initiatives
Open Government
About
Login / Register
Home
/
Property & Tax Records
/
Property Records
/
Property & Tax Search
/
Parcel Profile
/
Sketches
Search for Another Parcel
Parcel Profile
Historical Card
Sketches
Photos
Tax Map
Taxes
Print View
Address: 4008 10 ZOAR AVE
Parcel: 19061015020900
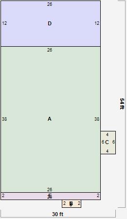
Parcel Sketches
Residential Card 1
A
MAIN
988 square feet
B
MA STOOP/TERR MAS STOOP
10 square feet
C
OFP OPEN FRAME PORCH
24 square feet
D
MA_PT CONC/MAS PATIO
312 square feet
E
OFP OPEN FRAME PORCH
52 square feet