Elected Officials
Courts
Departments
Initiatives
Open Government
About
Login / Register
Home
/
Property & Tax Records
/
Property Records
/
Property & Tax Search
/
Parcel Profile
/
Sketches
Search for Another Parcel
Parcel Profile
Historical Card
Sketches
Photos
Tax Map
Taxes
Print View
Address: 131 BELMONT AVE
Parcel: 19061021010900
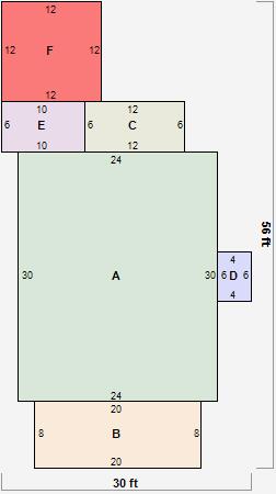
Parcel Sketches
Residential Card 1
A
MAIN
720 square feet
B
UNFIN BSMT BASEMENT UNFINISHED EFP ENCL FRAME PORCH
160 square feet
C
1S FR ONE STORY FRAME
72 square feet
D
EFP ENCL FRAME PORCH
24 square feet
E
OFP OPEN FRAME PORCH
60 square feet
F
WDDCK WOOD DECKS
144 square feet