Elected Officials
Courts
Departments
Initiatives
Open Government
About
Login / Register
Home
/
Property & Tax Records
/
Property Records
/
Property & Tax Search
/
Parcel Profile
/
Sketches
Search for Another Parcel
Parcel Profile
Historical Card
Sketches
Photos
Tax Map
Taxes
Print View
Address: 1450 W 34 ST
Parcel: 19061036021000
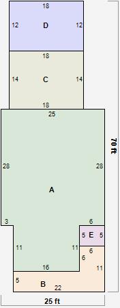
Parcel Sketches
Residential Card 1
A
MAIN
876 square feet
B
OFP OPEN FRAME PORCH
146 square feet
C
1S FR ONE STORY FRAME
252 square feet
D
WDDCK WOOD DECKS
216 square feet
E
UNFIN BSMT BASEMENT UNFINISHED 1S FR ONE STORY FRAME
30 square feet