Elected Officials
Courts
Departments
Initiatives
Open Government
About
Login / Register
Home
/
Property & Tax Records
/
Property Records
/
Property & Tax Search
/
Parcel Profile
/
Sketches
Search for Another Parcel
Parcel Profile
Historical Card
Sketches
Photos
Tax Map
Taxes
Print View
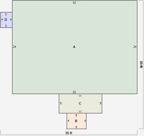
Address: 3703 GREENGARDEN BLVD
Parcel: 19061045011600
Parcel Sketches
Residential Card 1
A
MAIN
768 square feet
B
MA STOOP/TERR MAS STOOP
20 square feet
C
1S FR ONE STORY FRAME
55 square feet
D
MA STOOP/TERR MAS STOOP
12 square feet