Elected Officials
Courts
Departments
Initiatives
Open Government
About
Login / Register
Home
/
Property & Tax Records
/
Property Records
/
Property & Tax Search
/
Parcel Profile
/
Sketches
Search for Another Parcel
Parcel Profile
Historical Card
Sketches
Photos
Tax Map
Taxes
Print View
Address: 1319 W 25 ST
Parcel: 19062002031300
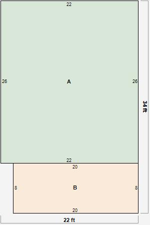
Parcel Sketches
Residential Card 1
A
MAIN
572 square feet
B
EFP ENCL FRAME PORCH
160 square feet