Elected Officials
Courts
Departments
Initiatives
Open Government
About
Login / Register
Home
/
Property & Tax Records
/
Property Records
/
Property & Tax Search
/
Parcel Profile
/
Sketches
Search for Another Parcel
Parcel Profile
Historical Card
Sketches
Photos
Tax Map
Taxes
Print View
Address: 2051 W 25 ST
Parcel: 19062015011300
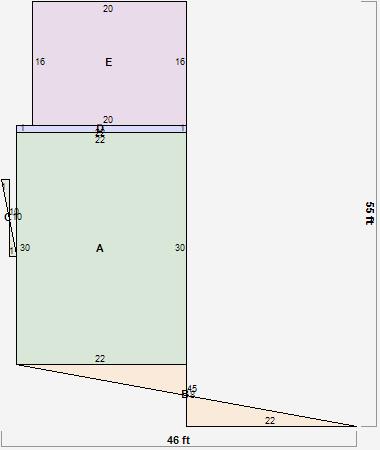
Parcel Sketches
Residential Card 1
A
MAIN
660 square feet
B
OFP OPEN FRAME PORCH
176 square feet
C
FRBAY FRAME BAY
10 square feet
D
FROVR FRAME OVERHANG
22 square feet
E
WDDCK WOOD DECKS
320 square feet