Elected Officials
Courts
Departments
Initiatives
Open Government
About
Login / Register
Home
/
Property & Tax Records
/
Property Records
/
Property & Tax Search
/
Parcel Profile
/
Sketches
Search for Another Parcel
Parcel Profile
Historical Card
Sketches
Photos
Tax Map
Taxes
Print View
Address: 2706 08 RASPBERRY ST
Parcel: 19062018020600
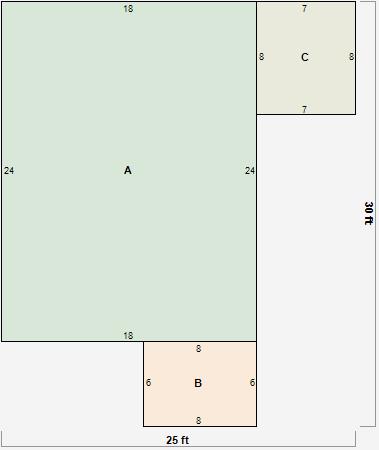
Parcel Sketches
Residential Card 1
A
MAIN
1120 square feet
B
OFP OPEN FRAME PORCH OFP OPEN FRAME PORCH
224 square feet
Residential Card 2
A
MAIN
432 square feet
B
OFP OPEN FRAME PORCH
48 square feet
C
EFP ENCL FRAME PORCH
56 square feet