Elected Officials
Courts
Departments
Initiatives
Open Government
About
Login / Register
Home
/
Property & Tax Records
/
Property Records
/
Property & Tax Search
/
Parcel Profile
/
Sketches
Search for Another Parcel
Parcel Profile
Historical Card
Sketches
Photos
Tax Map
Taxes
Print View
Address: 1136 W 27 ST
Parcel: 19062018032700
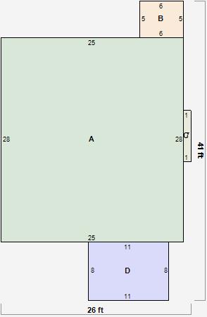
Parcel Sketches
Residential Card 1
A
MAIN
700 square feet
B
MA STOOP/TERR MAS STOOP
30 square feet
C
FRBAY FRAME BAY
7 square feet
D
OFP OPEN FRAME PORCH
88 square feet