Elected Officials
Courts
Departments
Initiatives
Open Government
About
Login / Register
Home
/
Property & Tax Records
/
Property Records
/
Property & Tax Search
/
Parcel Profile
/
Sketches
Search for Another Parcel
Parcel Profile
Historical Card
Sketches
Photos
Tax Map
Taxes
Print View
Address: 1332 PATTERSON AVE
Parcel: 19062023032300
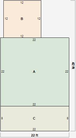
Parcel Sketches
Residential Card 1
A
MAIN
484 square feet
B
UNFIN BSMT BASEMENT UNFINISHED 1S FR ONE STORY FRAME
144 square feet
C
OFP OPEN FRAME PORCH
176 square feet