Elected Officials
Courts
Departments
Initiatives
Open Government
About
Login / Register
Home
/
Property & Tax Records
/
Property Records
/
Property & Tax Search
/
Parcel Profile
/
Sketches
Search for Another Parcel
Parcel Profile
Historical Card
Sketches
Photos
Tax Map
Taxes
Print View
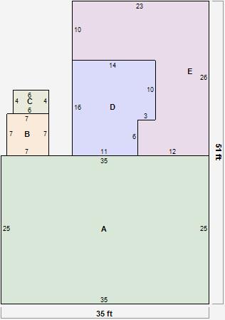
Address: 2817 AUBURN ST
Parcel: 19062026061300
Parcel Sketches
Residential Card 1
A
MAIN
875 square feet
B
1S FR ONE STORY FRAME
49 square feet
C
MA STOOP/TERR MAS STOOP
24 square feet
D
1S FR ONE STORY FRAME
206 square feet
E
WDDCK WOOD DECKS
392 square feet