Elected Officials
Courts
Departments
Initiatives
Open Government
About
Login / Register
Home
/
Property & Tax Records
/
Property Records
/
Property & Tax Search
/
Parcel Profile
/
Sketches
Search for Another Parcel
Parcel Profile
Historical Card
Sketches
Photos
Tax Map
Taxes
Print View
Address: 1549 W 30 ST
Parcel: 19062027050900
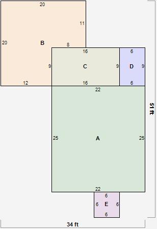
Parcel Sketches
Residential Card 1
A
MAIN
550 square feet
B
1S FR ONE STORY FRAME
328 square feet
C
FR UT FRAME UTILITY BUILDING
144 square feet
D
OFP OPEN FRAME PORCH
54 square feet
E
EFP ENCL FRAME PORCH
36 square feet