Elected Officials
Courts
Departments
Initiatives
Open Government
About
Login / Register
Home
/
Property & Tax Records
/
Property Records
/
Property & Tax Search
/
Parcel Profile
/
Sketches
Search for Another Parcel
Parcel Profile
Historical Card
Sketches
Photos
Tax Map
Taxes
Print View
Address: 2821 OAKWOOD ST
Parcel: 19062028022600
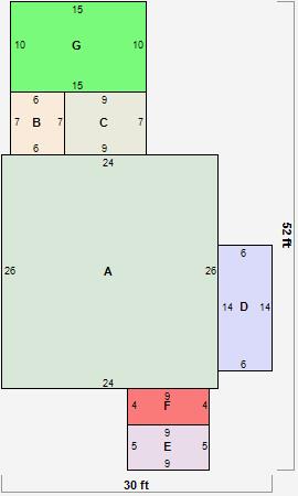
Parcel Sketches
Residential Card 1
A
MAIN
624 square feet
B
EFP ENCL FRAME PORCH
42 square feet
C
UNFIN BSMT BASEMENT UNFINISHED 1S FR ONE STORY FRAME
63 square feet
D
1S FR ONE STORY FRAME
84 square feet
E
MA STOOP/TERR MAS STOOP
45 square feet
F
UNFIN BSMT BASEMENT UNFINISHED 1S FR ONE STORY FRAME
36 square feet
G
WDDCK WOOD DECKS
150 square feet