Elected Officials
Courts
Departments
Initiatives
Open Government
About
Login / Register
Home
/
Property & Tax Records
/
Property Records
/
Property & Tax Search
/
Parcel Profile
/
Sketches
Search for Another Parcel
Parcel Profile
Historical Card
Sketches
Photos
Tax Map
Taxes
Print View
Address: 7930 MELHORN RD
Parcel: 21005006000400
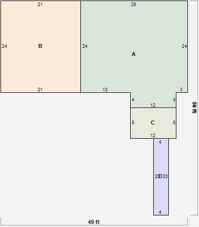
Parcel Sketches
Residential Card 1
A
MAIN
720 square feet
B
FR GR FRAME GARAGE 1S FR ONE STORY FRAME
504 square feet
C
EFP ENCL FRAME PORCH
96 square feet
D
WDDCK WOOD DECKS
80 square feet