Elected Officials
Courts
Departments
Initiatives
Open Government
About
Login / Register
Home
/
Property & Tax Records
/
Property Records
/
Property & Tax Search
/
Parcel Profile
/
Sketches
Search for Another Parcel
Parcel Profile
Historical Card
Sketches
Photos
Tax Map
Taxes
Print View
Address: 8215 LOUISA DR
Parcel: 21006001005700
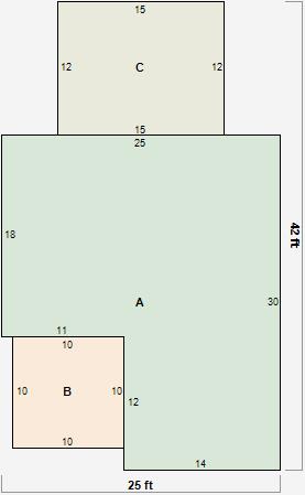
Parcel Sketches
Residential Card 1
A
MAIN
618 square feet
B
WDDCK WOOD DECKS
100 square feet
C
OFP OPEN FRAME PORCH WDDCK WOOD DECKS
180 square feet