Elected Officials
Courts
Departments
Initiatives
Open Government
About
Login / Register
Home
/
Property & Tax Records
/
Property Records
/
Property & Tax Search
/
Parcel Profile
/
Sketches
Search for Another Parcel
Parcel Profile
Historical Card
Sketches
Photos
Tax Map
Taxes
Print View
Address: 7558 HATHAWAY DR
Parcel: 21009005004300
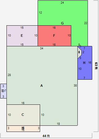
Parcel Sketches
Residential Card 1
A
MAIN
1132 square feet
B
FROVR FRAME OVERHANG
48 square feet
C
OFP OPEN FRAME PORCH 1S FR ONE STORY FRAME
160 square feet
D
FRBAY FRAME BAY FRBAY FRAME BAY
21 square feet
E
EFP ENCL FRAME PORCH
150 square feet
F
1S FR ONE STORY FRAME
160 square feet
G
WDDCK WOOD DECKS
368 square feet
H
WDDCK WOOD DECKS
104 square feet
I
FRBAY FRAME BAY
8 square feet