Elected Officials
Courts
Departments
Initiatives
Open Government
About
Login / Register
Home
/
Property & Tax Records
/
Property Records
/
Property & Tax Search
/
Parcel Profile
/
Sketches
Search for Another Parcel
Parcel Profile
Historical Card
Sketches
Photos
Tax Map
Taxes
Print View
Address: 100 GRACE AVE
Parcel: 21012011000600
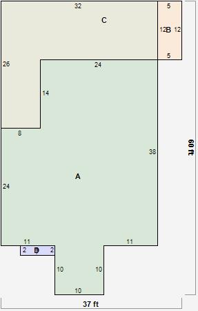
Parcel Sketches
Residential Card 1
A
MAIN
1204 square feet
B
WDDCK WOOD DECKS
60 square feet
C
1S FR ONE STORY FRAME
496 square feet
D
FRBAY FRAME BAY
14 square feet