Elected Officials
Courts
Departments
Initiatives
Open Government
About
Login / Register
Home
/
Property & Tax Records
/
Property Records
/
Property & Tax Search
/
Parcel Profile
/
Sketches
Search for Another Parcel
Parcel Profile
Historical Card
Sketches
Photos
Tax Map
Taxes
Print View
Address: 7134 W LAKE RD
Parcel: 21016011014400
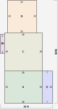
Parcel Sketches
Residential Card 1
A
MAIN
572 square feet
B
1S FR ONE STORY FRAME
440 square feet
C
1S FR ONE STORY FRAME AT FN ATTIC-FINISHED
676 square feet
D
OFP OPEN FRAME PORCH
154 square feet
E
FRBAY FRAME BAY
39 square feet