Elected Officials
Courts
Departments
Initiatives
Open Government
About
Login / Register
Home
/
Property & Tax Records
/
Property Records
/
Property & Tax Search
/
Parcel Profile
/
Sketches
Search for Another Parcel
Parcel Profile
Historical Card
Sketches
Photos
Tax Map
Taxes
Print View
Address: 6840 W LAKE RD
Parcel: 21021014000700
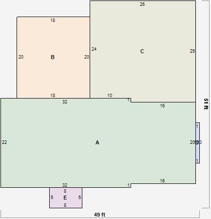
Parcel Sketches
Residential Card 1
A
MAIN
1024 square feet
B
FR GR FRAME GARAGE 1S FR ONE STORY FRAME
360 square feet
C
MA_PT CONC/MAS PATIO
640 square feet
D
1S FR ONE STORY FRAME
10 square feet
E
OFP OPEN FRAME PORCH
40 square feet