Elected Officials
Courts
Departments
Initiatives
Open Government
About
Login / Register
Home
/
Property & Tax Records
/
Property Records
/
Property & Tax Search
/
Parcel Profile
/
Sketches
Search for Another Parcel
Parcel Profile
Historical Card
Sketches
Photos
Tax Map
Taxes
Print View
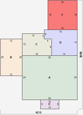
Address: 1808 MANCHESTER RD
Parcel: 21040058000700
Parcel Sketches
Residential Card 1
A
MAIN
720 square feet
B
FR GR FRAME GARAGE
240 square feet
C
MA_PT CONC/MAS PATIO
180 square feet
D
1S FR ONE STORY FRAME
216 square feet
E
1S FR ONE STORY FRAME
50 square feet
F
WDDCK WOOD DECKS
256 square feet