Elected Officials
Courts
Departments
Initiatives
Open Government
About
Login / Register
Home
/
Property & Tax Records
/
Property Records
/
Property & Tax Search
/
Parcel Profile
/
Sketches
Search for Another Parcel
Parcel Profile
Historical Card
Sketches
Photos
Tax Map
Taxes
Print View
Address: 6973 W LAKE RD
Parcel: 21044059000300
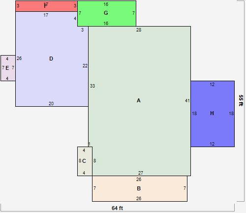
Parcel Sketches
Residential Card 1
A
MAIN
1140 square feet
B
OFP OPEN FRAME PORCH
182 square feet
C
WDDCK WOOD DECKS
32 square feet
D
FR GR FRAME GARAGE
508 square feet
E
OFP OPEN FRAME PORCH
28 square feet
F
CANPY CANOPY
51 square feet
G
EFP ENCL FRAME PORCH
112 square feet
H
UNFIN BSMT BASEMENT UNFINISHED 1S FR ONE STORY FRAME
216 square feet
Residential Card 2
A
MAIN
370 square feet
B
FR GR FRAME GARAGE 1S FR ONE STORY FRAME
504 square feet
C
WDDCK WOOD DECKS
121 square feet
D
EFP ENCL FRAME PORCH
45 square feet