Elected Officials
Courts
Departments
Initiatives
Open Government
About
Login / Register
Home
/
Property & Tax Records
/
Property Records
/
Property & Tax Search
/
Parcel Profile
/
Sketches
Search for Another Parcel
Parcel Profile
Historical Card
Sketches
Photos
Tax Map
Taxes
Print View
Address: 6885 W LAKE RD
Parcel: 21044059001200
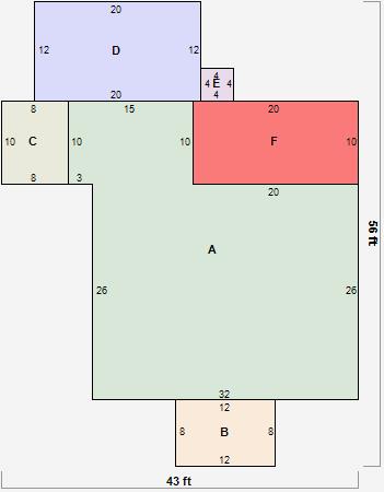
Parcel Sketches
Residential Card 1
A
MAIN
982 square feet
B
OFP OPEN FRAME PORCH
96 square feet
C
EFP ENCL FRAME PORCH
80 square feet
D
MA_PT CONC/MAS PATIO
240 square feet
E
OFP OPEN FRAME PORCH
16 square feet
F
EFP ENCL FRAME PORCH
200 square feet