Elected Officials
Courts
Departments
Initiatives
Open Government
About
Login / Register
Home
/
Property & Tax Records
/
Property Records
/
Property & Tax Search
/
Parcel Profile
/
Sketches
Search for Another Parcel
Parcel Profile
Historical Card
Sketches
Photos
Tax Map
Taxes
Print View
Address: 6851 W LAKE RD
Parcel: 21044059001400
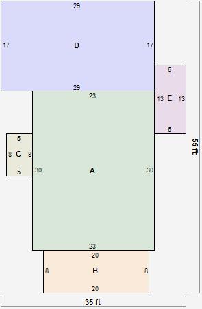
Parcel Sketches
Residential Card 1
A
MAIN
690 square feet
B
OFP OPEN FRAME PORCH
160 square feet
C
MA_PT CONC/MAS PATIO
40 square feet
D
1S FR ONE STORY FRAME
493 square feet
E
OFP OPEN FRAME PORCH
78 square feet