Elected Officials
Courts
Departments
Initiatives
Open Government
About
Login / Register
Home
/
Property & Tax Records
/
Property Records
/
Property & Tax Search
/
Parcel Profile
/
Sketches
Search for Another Parcel
Parcel Profile
Historical Card
Sketches
Photos
Tax Map
Taxes
Print View
Address: 7441 W LAKE RD
Parcel: 21047061000500
Parcel Sketches
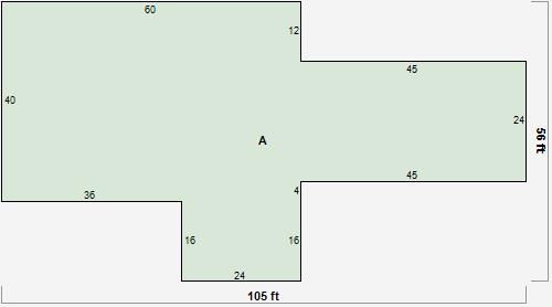
Commercial Card 1
A
MAIN
3864 square feet
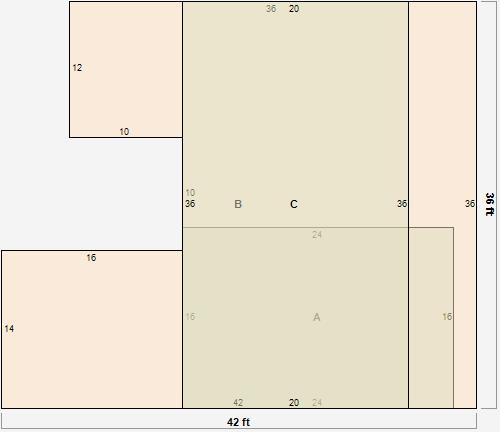
Commercial Card 2
A
MAIN
384 square feet
B
MAIN
1280 square feet
C
MAIN
720 square feet