Elected Officials
Courts
Departments
Initiatives
Open Government
About
Login / Register
Home
/
Property & Tax Records
/
Property Records
/
Property & Tax Search
/
Parcel Profile
/
Sketches
Search for Another Parcel
Parcel Profile
Historical Card
Sketches
Photos
Tax Map
Taxes
Print View
Address: 7961 W LAKE RD
Parcel: 21048063001600
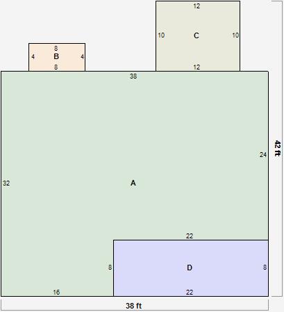
Parcel Sketches
Residential Card 1
A
MAIN
1040 square feet
B
WDDCK WOOD DECKS
32 square feet
C
WDDCK WOOD DECKS
120 square feet
D
OFP OPEN FRAME PORCH
176 square feet