Elected Officials
Courts
Departments
Initiatives
Open Government
About
Login / Register
Home
/
Property & Tax Records
/
Property Records
/
Property & Tax Search
/
Parcel Profile
/
Sketches
Search for Another Parcel
Parcel Profile
Historical Card
Sketches
Photos
Tax Map
Taxes
Print View
Address: 7201 7235 W LAKE RD
Parcel: 21049060000500
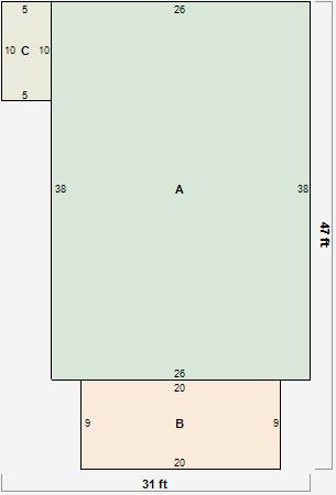
Parcel Sketches
Residential Card 1
A
MAIN
988 square feet
B
OFP OPEN FRAME PORCH
180 square feet
C
EFP ENCL FRAME PORCH
50 square feet
Residential Card 2
A
MAIN
656 square feet
B
OFP OPEN FRAME PORCH
91 square feet
C
MA STOOP/TERR MAS STOOP
16 square feet
D
WDDCK WOOD DECKS
240 square feet
E
UNFIN BSMT BASEMENT UNFINISHED 1S FR ONE STORY FRAME AT FN ATTIC-FINISHED
520 square feet