Elected Officials
Courts
Departments
Initiatives
Open Government
About
Login / Register
Home
/
Property & Tax Records
/
Property Records
/
Property & Tax Search
/
Parcel Profile
/
Sketches
Search for Another Parcel
Parcel Profile
Historical Card
Sketches
Photos
Tax Map
Taxes
Print View
Address: 6988 OLD RIDGE RD
Parcel: 21049073000100
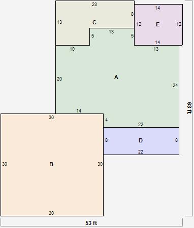
Parcel Sketches
Residential Card 1
A
MAIN
873 square feet
B
1S FR ONE STORY FRAME AT FN ATTIC-FINISHED
900 square feet
C
MA_PT CONC/MAS PATIO
234 square feet
D
OFP OPEN FRAME PORCH
176 square feet
E
WDDCK WOOD DECKS
168 square feet