Elected Officials
Courts
Departments
Initiatives
Open Government
About
Login / Register
Home
/
Property & Tax Records
/
Property Records
/
Property & Tax Search
/
Parcel Profile
/
Sketches
Search for Another Parcel
Parcel Profile
Historical Card
Sketches
Photos
Tax Map
Taxes
Print View
Address: 6020 MILLSTONE DR
Parcel: 21054083004603
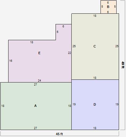
Parcel Sketches
Residential Card 1
A
MAIN
486 square feet
B
OFP OPEN FRAME PORCH
30 square feet
C
1S FR ONE STORY FRAME
450 square feet
D
1S FR ONE STORY FRAME 1S FR ONE STORY FRAME
342 square feet
E
WDDCK WOOD DECKS
420 square feet
Residential Card 2
A
MAIN
450 square feet
B
1S FR ONE STORY FRAME
72 square feet
C
FR GR FRAME GARAGE
400 square feet