Elected Officials
Courts
Departments
Initiatives
Open Government
About
Login / Register
Home
/
Property & Tax Records
/
Property Records
/
Property & Tax Search
/
Parcel Profile
/
Sketches
Search for Another Parcel
Parcel Profile
Historical Card
Sketches
Photos
Tax Map
Taxes
Print View
Address: 5920 SWANVILLE RD
Parcel: 21058082001601
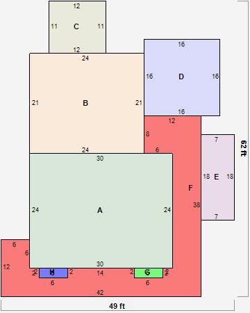
Parcel Sketches
Residential Card 1
A
MAIN
720 square feet
B
UNFIN BSMT BASEMENT UNFINISHED 1S FR ONE STORY FRAME AT UN ATTIC-UNFINISHED
504 square feet
C
MA_PT CONC/MAS PATIO
132 square feet
D
WDDCK WOOD DECKS
256 square feet
E
WDDCK WOOD DECKS
126 square feet
F
OFP OPEN FRAME PORCH
504 square feet
G
FRBAY FRAME BAY
12 square feet
H
FRBAY FRAME BAY
12 square feet