Elected Officials
Courts
Departments
Initiatives
Open Government
About
Login / Register
Home
/
Property & Tax Records
/
Property Records
/
Property & Tax Search
/
Parcel Profile
/
Sketches
Search for Another Parcel
Parcel Profile
Historical Card
Sketches
Photos
Tax Map
Taxes
Print View
Address: 5701 HEIDLER RD
Parcel: 21062091001900
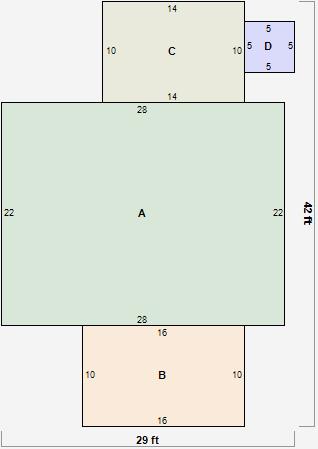
Parcel Sketches
Residential Card 1
A
MAIN
616 square feet
B
EFP ENCL FRAME PORCH
160 square feet
C
1S FR ONE STORY FRAME
140 square feet
D
MA STOOP/TERR MAS STOOP
25 square feet
Residential Card 2
A
MAIN
616 square feet
B
MA STOOP/TERR MAS STOOP
88 square feet
C
1S FR ONE STORY FRAME
224 square feet
D
WDDCK WOOD DECKS
192 square feet