Elected Officials
Courts
Departments
Initiatives
Open Government
About
Login / Register
Home
/
Property & Tax Records
/
Property Records
/
Property & Tax Search
/
Parcel Profile
/
Sketches
Search for Another Parcel
Parcel Profile
Historical Card
Sketches
Photos
Tax Map
Taxes
Print View
Address: 6345 HEIDLER RD
Parcel: 21063090000800
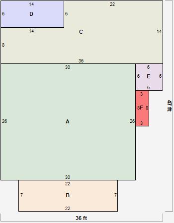
Parcel Sketches
Residential Card 1
A
MAIN
780 square feet
B
OFP OPEN FRAME PORCH
154 square feet
C
1S FR ONE STORY FRAME
420 square feet
D
OFP OPEN FRAME PORCH
84 square feet
E
OFP OPEN FRAME PORCH
36 square feet
F
1S FR ONE STORY FRAME
24 square feet