Elected Officials
Courts
Departments
Initiatives
Open Government
About
Login / Register
Home
/
Property & Tax Records
/
Property Records
/
Property & Tax Search
/
Parcel Profile
/
Sketches
Search for Another Parcel
Parcel Profile
Historical Card
Sketches
Photos
Tax Map
Taxes
Print View
Address: 7021 VAN CAMP RD
Parcel: 21072136000303
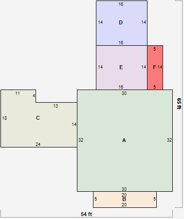
Parcel Sketches
Residential Card 1
A
MAIN
960 square feet
B
WDDCK WOOD DECKS
100 square feet
C
1S FR ONE STORY FRAME
380 square feet
D
FR UT FRAME UTILITY BUILDING
224 square feet
E
1S FR ONE STORY FRAME
224 square feet
F
OFP OPEN FRAME PORCH
70 square feet