Elected Officials
Courts
Departments
Initiatives
Open Government
About
Login / Register
Home
/
Property & Tax Records
/
Property Records
/
Property & Tax Search
/
Parcel Profile
/
Sketches
Search for Another Parcel
Parcel Profile
Historical Card
Sketches
Photos
Tax Map
Taxes
Print View
Address: 7268 PINE ST
Parcel: 21076006001200
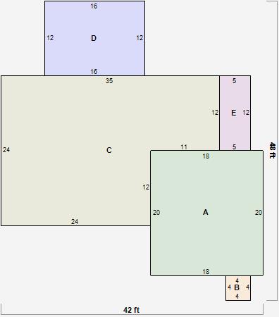
Parcel Sketches
Residential Card 1
A
MAIN
360 square feet
B
MA STOOP/TERR MAS STOOP
16 square feet
C
1S FR ONE STORY FRAME
708 square feet
D
OFP OPEN FRAME PORCH
192 square feet
E
OFP OPEN FRAME PORCH
60 square feet