Elected Officials
Courts
Departments
Initiatives
Open Government
About
Login / Register
Home
/
Property & Tax Records
/
Property Records
/
Property & Tax Search
/
Parcel Profile
/
Sketches
Search for Another Parcel
Parcel Profile
Historical Card
Sketches
Photos
Tax Map
Taxes
Print View
Address: 4112 AVONIA RD
Parcel: 21080024000400
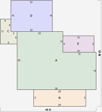
Parcel Sketches
Residential Card 1
A
MAIN
904 square feet
B
OFP OPEN FRAME PORCH
200 square feet
C
EFP ENCL FRAME PORCH
78 square feet
D
FR GR FRAME GARAGE
300 square feet
E
WDDCK WOOD DECKS
120 square feet