Elected Officials
Courts
Departments
Initiatives
Open Government
About
Login / Register
Home
/
Property & Tax Records
/
Property Records
/
Property & Tax Search
/
Parcel Profile
/
Sketches
Search for Another Parcel
Parcel Profile
Historical Card
Sketches
Photos
Tax Map
Taxes
Print View
Address: 7315 W RIDGE RD
Parcel: 21081026001702
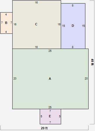
Parcel Sketches
Residential Card 1
A
MAIN
500 square feet
B
EFP ENCL FRAME PORCH
28 square feet
C
UNFIN BSMT BASEMENT UNFINISHED 1S FR ONE STORY FRAME AT UN ATTIC-UNFINISHED
256 square feet
D
1S FR ONE STORY FRAME
120 square feet
E
OFP OPEN FRAME PORCH
35 square feet