Elected Officials
Courts
Departments
Initiatives
Open Government
About
Login / Register
Home
/
Property & Tax Records
/
Property Records
/
Property & Tax Search
/
Parcel Profile
/
Sketches
Search for Another Parcel
Parcel Profile
Historical Card
Sketches
Photos
Tax Map
Taxes
Print View
Address: 7509 BIRCH DR
Parcel: 21083023002300
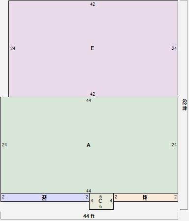
Parcel Sketches
Residential Card 1
A
MAIN
1056 square feet
B
FROVR FRAME OVERHANG
32 square feet
C
MA STOOP/TERR MAS STOOP
24 square feet
D
FROVR FRAME OVERHANG
44 square feet
E
WDDCK WOOD DECKS
1008 square feet