Elected Officials
Courts
Departments
Initiatives
Open Government
About
Login / Register
Home
/
Property & Tax Records
/
Property Records
/
Property & Tax Search
/
Parcel Profile
/
Sketches
Search for Another Parcel
Parcel Profile
Historical Card
Sketches
Photos
Tax Map
Taxes
Print View
Address: 9701 EUREKA RD
Parcel: 22002013001900
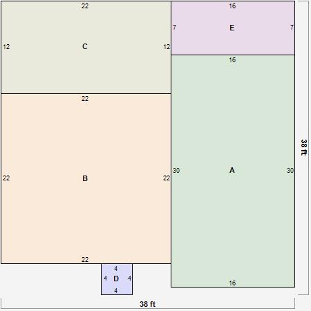
Parcel Sketches
Residential Card 1
A
MAIN
480 square feet
B
1S FR ONE STORY FRAME
484 square feet
C
1S FR ONE STORY FRAME
264 square feet
D
OFP OPEN FRAME PORCH
16 square feet
E
OFP OPEN FRAME PORCH
112 square feet