Elected Officials
Courts
Departments
Initiatives
Open Government
About
Login / Register
Home
/
Property & Tax Records
/
Property Records
/
Property & Tax Search
/
Parcel Profile
/
Sketches
Search for Another Parcel
Parcel Profile
Historical Card
Sketches
Photos
Tax Map
Taxes
Print View
Address: 6014 OLD STATE RD
Parcel: 22004012001100
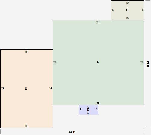
Parcel Sketches
Residential Card 1
A
MAIN
728 square feet
B
UNFIN BSMT BASEMENT UNFINISHED 1S FR ONE STORY FRAME 1/2FR FRAME HALF-STORY
384 square feet
C
EFP ENCL FRAME PORCH
60 square feet
D
OFP OPEN FRAME PORCH
18 square feet