Elected Officials
Courts
Departments
Initiatives
Open Government
About
Login / Register
Home
/
Property & Tax Records
/
Property Records
/
Property & Tax Search
/
Parcel Profile
/
Sketches
Search for Another Parcel
Parcel Profile
Historical Card
Sketches
Photos
Tax Map
Taxes
Print View
Address: 1045 RICE AVE
Parcel: 23003016002000
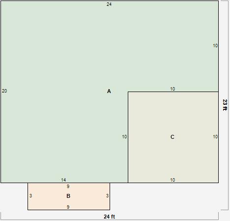
Parcel Sketches
Residential Card 1
A
MAIN
864 square feet
B
OFP OPEN FRAME PORCH
176 square feet
C
WDDCK WOOD DECKS
15 square feet
Residential Card 2
A
MAIN
380 square feet
B
OFP OPEN FRAME PORCH
27 square feet
C
FR GR FRAME GARAGE
100 square feet