Elected Officials
Courts
Departments
Initiatives
Open Government
About
Login / Register
Home
/
Property & Tax Records
/
Property Records
/
Property & Tax Search
/
Parcel Profile
/
Sketches
Search for Another Parcel
Parcel Profile
Historical Card
Sketches
Photos
Tax Map
Taxes
Print View
Address: 48 MILES AVE
Parcel: 23004017000600
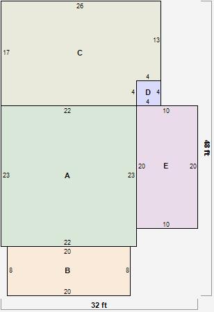
Parcel Sketches
Residential Card 1
A
MAIN
506 square feet
B
EFP ENCL FRAME PORCH
160 square feet
C
UNFIN BSMT BASEMENT UNFINISHED 1S FR ONE STORY FRAME 1/2FR FRAME HALF-STORY
426 square feet
D
OFP OPEN FRAME PORCH
16 square feet
E
WDDCK WOOD DECKS
200 square feet