Elected Officials
Courts
Departments
Initiatives
Open Government
About
Login / Register
Home
/
Property & Tax Records
/
Property Records
/
Property & Tax Search
/
Parcel Profile
/
Sketches
Search for Another Parcel
Parcel Profile
Historical Card
Sketches
Photos
Tax Map
Taxes
Print View
Address: 614 OLIN AVE
Parcel: 23008029000300
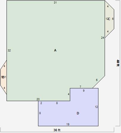
Parcel Sketches
Residential Card 1
A
MAIN
940 square feet
B
UNFIN BSMT BASEMENT UNFINISHED FRBAY FRAME BAY
16 square feet
C
UNFIN BSMT BASEMENT UNFINISHED FRBAY FRAME BAY
27 square feet
D
OFP OPEN FRAME PORCH
188 square feet