Elected Officials
Courts
Departments
Initiatives
Open Government
About
Login / Register
Home
/
Property & Tax Records
/
Property Records
/
Property & Tax Search
/
Parcel Profile
/
Sketches
Search for Another Parcel
Parcel Profile
Historical Card
Sketches
Photos
Tax Map
Taxes
Print View
Address: 412 OLIN AVE
Parcel: 23008029001300
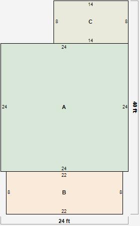
Parcel Sketches
Residential Card 1
A
MAIN
576 square feet
B
OFP OPEN FRAME PORCH
176 square feet
C
EFP ENCL FRAME PORCH
112 square feet