Elected Officials
Courts
Departments
Initiatives
Open Government
About
Login / Register
Home
/
Property & Tax Records
/
Property Records
/
Property & Tax Search
/
Parcel Profile
/
Sketches
Search for Another Parcel
Parcel Profile
Historical Card
Sketches
Photos
Tax Map
Taxes
Print View
Address: 531 OLIN AVE
Parcel: 23008030001200
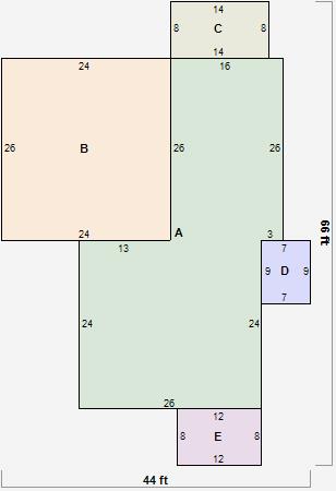
Parcel Sketches
Residential Card 1
A
MAIN
1040 square feet
B
FR GR FRAME GARAGE
624 square feet
C
ST_PT STONE OR TILE PATIO
112 square feet
D
OFP OPEN FRAME PORCH
63 square feet
E
OFP OPEN FRAME PORCH
96 square feet