Elected Officials
Courts
Departments
Initiatives
Open Government
About
Login / Register
Home
/
Property & Tax Records
/
Property Records
/
Property & Tax Search
/
Parcel Profile
/
Sketches
Search for Another Parcel
Parcel Profile
Historical Card
Sketches
Photos
Tax Map
Taxes
Print View
Address: 632 MECHANIC ST
Parcel: 23009021000300
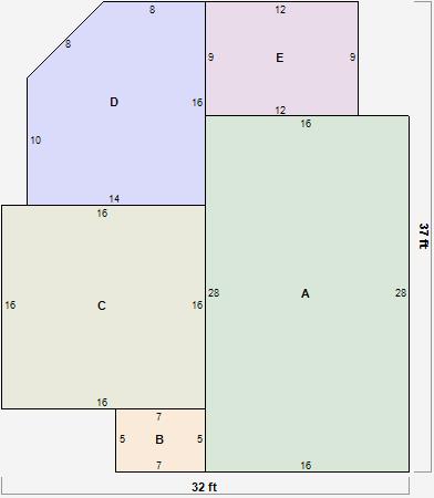
Parcel Sketches
Residential Card 1
A
MAIN
448 square feet
B
OFP OPEN FRAME PORCH
35 square feet
C
UNFIN BSMT BASEMENT UNFINISHED 1S FR ONE STORY FRAME 1S FR ONE STORY FRAME
256 square feet
D
WDDCK WOOD DECKS
206 square feet
E
OFP OPEN FRAME PORCH
108 square feet