Elected Officials
Courts
Departments
Initiatives
Open Government
About
Login / Register
Home
/
Property & Tax Records
/
Property Records
/
Property & Tax Search
/
Parcel Profile
/
Sketches
Search for Another Parcel
Parcel Profile
Historical Card
Sketches
Photos
Tax Map
Taxes
Print View
Address: 251 LAKE ST
Parcel: 23011005000900
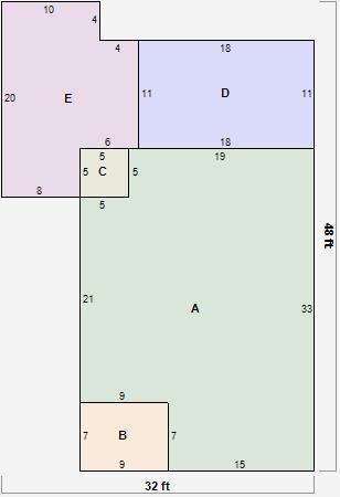
Parcel Sketches
Residential Card 1
A
MAIN
704 square feet
B
OMP OPEN MASONRY PORCH
63 square feet
C
1S FR ONE STORY FRAME
25 square feet
D
OFP OPEN FRAME PORCH
198 square feet
E
WDDCK WOOD DECKS
234 square feet