Elected Officials
Courts
Departments
Initiatives
Open Government
About
Login / Register
Home
/
Property & Tax Records
/
Property Records
/
Property & Tax Search
/
Parcel Profile
/
Sketches
Search for Another Parcel
Parcel Profile
Historical Card
Sketches
Photos
Tax Map
Taxes
Print View
Address: 134 WALNUT ST
Parcel: 23015052001200
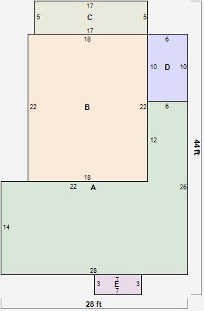
Parcel Sketches
Residential Card 1
A
MAIN
464 square feet
B
1S FR ONE STORY FRAME
396 square feet
C
FR UT FRAME UTILITY BUILDING
85 square feet
D
MA STOOP/TERR MAS STOOP
60 square feet
E
OFP OPEN FRAME PORCH
21 square feet