Elected Officials
Courts
Departments
Initiatives
Open Government
About
Login / Register
Home
/
Property & Tax Records
/
Property Records
/
Property & Tax Search
/
Parcel Profile
/
Sketches
Search for Another Parcel
Parcel Profile
Historical Card
Sketches
Photos
Tax Map
Taxes
Print View
Address: 321 MAIN ST W
Parcel: 23016053000800
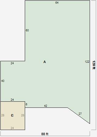
Parcel Sketches
Commercial Card 1
A
MAIN
7920 square feet
B
MAIN
672 square feet
C
MAIN
672 square feet
Commercial Card 2
A
MAIN
6480 square feet